Full Details
First Floor Retirement Apartment | Shared Ownership | Over 60s | Stamford
With over 60% of apartments already reserved at Barley Ridge Gardens, this is a rare opportunity to secure a beautifully designed retirement home in one of the UK’s most desirable market towns.
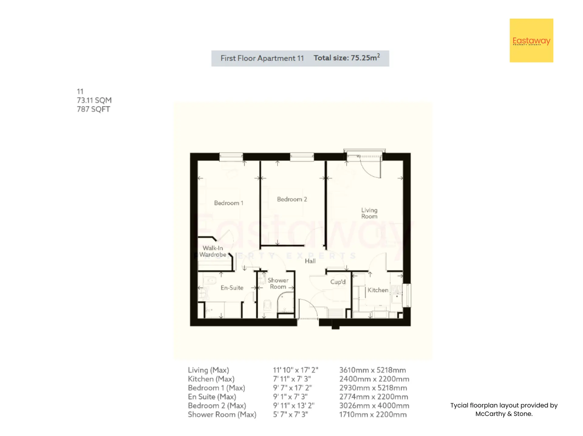
Apartment 11 is a spacious two bedroom first floor apartment with a north west aspect, available under the Older Persons Shared Ownership scheme for those aged 60 and over.
The apartment offers a bright and generously proportioned living room, ideal for relaxing and dining. The contemporary fitted kitchen includes integrated appliances and a waist-height oven to reduce bending and lifting. A washer dryer is included within the utility cupboard.
The principal bedroom benefits from a walk-in wardrobe and private en suite shower room. The second bedroom is a genuine double, perfect for guests, hobbies or a study.
The shower room includes:
• Walk-in shower with low profile tray
• Comfort-height WC
• Low slip flooring
• Contemporary fixtures and fittings
Designed for Easier Living
Thoughtful details throughout include:
• Higher positioned plug sockets to reduce bending
• Easy-turn taps
• Sky Q connection point in the living room
• Ultra-efficient heating and heat recovery systems
• Super insulation for year-round comfort
• Integrated fire detection and intruder alert systems
• Digital personal alarm connected to 24/7 emergency assistance
• Secure TV camera entry system
Life at Barley Ridge Gardens
Set against countryside views towards allotments and the River Welland, yet within walking distance of Stamford town centre, this development offers the perfect balance of peace and convenience.
Residents enjoy:
• Landscaped communal gardens
• Beautiful homeowners’ lounge with Wi-Fi and audio-visual system
• Rooftop terrace with countryside views
• Guest Suite for visiting family and friends (subject to availability)
• Lifts to all floors
• On-site House Manager available approximately 25 hours per week, Monday to Friday
• 24/7 remotely monitored emergency call system
• Parking spaces available for purchase, subject to availability
• Mobility scooter charging facilities
• Well-behaved pets permitted subject to policy
Stamford offers Waitrose, M&S, independent shops, cafés, restaurants, medical services, Stamford Corn Exchange Theatre, bus routes and railway connections. It has recently been named one of the best places to live in the UK.
Older Persons Shared Ownership Explained
This apartment is offered under the Older Persons Shared Ownership scheme.
Key points:
• Minimum initial share available from 10%
• Maximum ownership of 75%
• When you reach 75% ownership, no rent is payable on the remaining share
• Rent is calculated at 2.75% of the remaining share owned by the landlord
• Rent is reviewed annually using CPI plus 1%
• Initial repair period – up to £500 per year for the first 10 years to assist with essential repairs
• Landlord nomination period of 4 weeks if you decide to sell your share
Reservation Fee: £500 (refundable subject to the terms of the Reservation Agreement).
Eligibility Criteria
You must:
• Be aged 60 or over
• Have a household income of £80,000 or less
• Be unable to afford to purchase a suitable home outright
If you currently own a property, it must be sold on or before completion of your shared ownership purchase. Financial assessment and eligibility checks apply.
Tenure and Charges
Leasehold – 990 years.
Maximum ownership 75% – the property will always remain leasehold.
Council tax band – to be determined (new build).
Service Charge: £301.35 per month (in addition to any rent payable).
The service charge includes maintenance of the building and gardens, communal utilities, development staff, building insurance, professional fees, reserve fund contributions and the 24/7 emergency call system.
Failure to pay rent, service charge or mortgage could result in repossession.
Subletting of the entire property is not permitted except in exceptional circumstances and with landlord and lender consent.
Floorplans and room dimensions are provided for guidance only. Measurements are maximum dimensions and layouts shown are typical designs provided by McCarthy & Stone. Individual apartments may vary.
Two Bedroom | First Floor | North West Facing
Market Value: £380,000
Example Purchase Options:
50% Share: £190,000 | Rent £435.42 per month
75% Share: £285,000 | No Rent Payable
Service Charge: £301.35 per month
Living Room 11' 10" x 17' 2" (3.61m x 5.23m)
Kitchen 7' 11" x 7' 3" (2.41m x 2.21m)
Bedroom 1 9' 7" x 17' 2" (2.92m x 5.23m)
Bedroom 1 En Suite 9' 1" x 7' 3" (2.77m x 2.21m)
Bedroom 2 9' 11" x 13' 2" (3.02m x 4.01m)
Bathroom 5' 7" x 7' 3" (1.70m x 2.21m)
Disclaimer
IMPORTANT NOTICE:
Property details are provided in good faith but may change and should not be taken as a complete or guaranteed description. While we aim for accuracy, all information must be independently checked and does not form part of any contract. Measurements are approximate, services and appliances have not been tested, and images or floorplans are for guidance only. Buyers should verify permissions, consents, and any other matters with their own advisers.
BUYER VERIFICATION:
In line with the Money Laundering Regulations, all purchasers must complete identification and proof/source of funds checks at the offer stage. A non-refundable fee of £35 (inc VAT) per person is payable for these checks. We cannot legally move forward with the sale until the buyers have completed these checks. The property will remain 'for sale' until checks are completed.









